Трёхфазные сети и их основные характеристики
Трёхфазные электрические сети представляют собой совокупность трёх источников напряжения переменного тока (с частотой 50 Гц для промышленного или бытового применения), соединённых по схеме электрической звезды (рис. 1,а), и линий электропередач, необходимых для подключения потребителей электроэнергии.
Рис. 1. Система напряжений трёхфазной электрической сети
Общую точку, соединяющую выводы генераторов напряжения трёхфазной электрической сети (общую точку электрической звезды), называют нейтралью (N) электрической сети, а их другие выводы, к которым подключаются проводники линий электропередач, называют фазами (A, B, C). Напряжения переменного тока, генерируемые каждым источником трёхфазной электрической сети, называются фазными напряжениями (ÚA , ÚB , ÚC).
Напряжения переменного тока фазных источников сдвинуты по фазе друг относительно друга на 120 градусов (векторная диаграмма трёхфазного напряжения на рис. 1,б). Напряжения, действующие между любыми парами фаз электрической сети, называют линейными (ÚAB, ÚBC, ÚCA). При равенстве модулей фазных напряжений (|ÚA| = |ÚB| = |ÚC| = U) равными будут и модули линейных напряжений: |ÚAB|= |ÚBC| = |ÚCA| = Uл =
U .
Источниками питания трехфазных сетей служат трансформаторы или генераторы.
Линии электропередач в электрических сетях, подключаемые к источнику трёхфазного напряжения, могут быть воздушного или кабельного типа. В том и другом случае проводники электрической сети линий электропередач обладают некоторым активным и ёмкостным сопротивлением изоляции относительно земли: RA, RB, RC и CA, CB, CC .
В дальнейшем с целью упрощения расчётов будем полагать, что
RA = RB = RC = R и CA = CB = CC = C.
Комплексное сопротивление изоляции каждой фазы электрической сети относительно земли определяется как результат параллельного соединения активной R и ёмкостной ZC = 1/jwC составляющих:
Z = R || ZC = R (1 + jw R C)–1 .
Модуль комплексного сопротивления изоляции фазных проводников электрической сети относительно земли определяется по формуле
где w = 2p f ; f = 50 Гц – частота электрической сети.
Ёмкость фаз относительно земли определяется типом линии (воздушная, проводная, кабельная), её длиной, высотой подвеса проводов, толщиной фазной изоляции жил кабеля, диаметром его оболочки, т.е. геометрическими параметрами линии, и не может быть уменьшена. Особенно большой ёмкость фаз может быть в кабельных линиях большой протяженности, при этом соответственно уменьшается величина модуля комплексного сопротивления изоляции фаз и ослабляется ее защитное действие.
В зависимости от вида нейтрали различают два типа трехфазных электрических сетей:
§ трёхпроводная сеть с изолированной нейтралью (СИН);
§ четырёхпроводная сеть с заземленной нейтралью (СЗН).
Нейтраль в СИН хорошо изолирована от земли.
Нейтраль в СЗН подключена к заземляющему устройству с малым сопротивлением. Согласно требованиям Правил устройства электроустановок (ПУЭ) [1] сопротивление заземления нейтрали R0 в любое время года не должно превышать 4 Ом для фазного напряжения 220 В.
В СЗН четвёртый (нулевой) проводник подключен к нейтрали N и наряду с фазными проводниками A, B и C является рабочим проводником электрической сети.
При анализе опасности поражения человека током в трехфазной сети различают однофазное и двухфазное прикосновение человека. При двухфазном прикосновении человек одновременно прикасается к двум фазам сети и попадает под полное линейное напряжение. При однофазном прикосновении человек, стоящий на основании, электрически связанном с землей, прикасается к одной из фаз сети. В этом случае ток через тело человека зависит от вида нейтрали и режима работы сети.
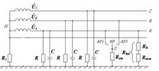
Общая схема трёхфазной электрической сети при однофазном прикосновении человека показана на рис. 2, где для случая СИН следует условно полагать R0
¥ .
Рис. 2. Общая схема трёхфазной электрической сети
В схеме на рис. 2 с помощью трёхпозиционного переключателя S моделируются режим нормальной работа сети (НР) и аварийные режимы (АР1 и АР2), соответствующие замыканию одной из фаз электрической сети на землю через сопротивление RЗМ. Возможное прикосновение человека к фазному проводнику на рис. 2 моделируется с помощью сопротивлений тела человека Rh и дополнительного Rдоп (включает сопротивления обуви, пола и др.), в сумме составляющих сопротивление Rhп
Методика оценки опасности поражения током
Оценка опасности поражения человека током заключается в нахождении значения тока, протекающего через тело человека (основной фактор, влияющий на исход поражения), и сравнении полученного значения с допустимым по соображениям безопасности [2].
Ток, протекающий через тело человека Ih, связан с напряжением прикосновения Uh, приложенным непосредственно к телу человека, и сопротивлением тела человека Rh: Ih = Uh/Rh = Uhп/Rhп, где Uhп – падение напряжения на сопротивлении Rhп (рис. 2). В худшем случае человек дополнительно не защищен, поэтому Rдоп = 0 и Rhп = Rh.
Согласно ГОСТ 12.1.038-82* [2] при расчётах значение Rh следует выбирать в зависимости от допустимого напряжения прикосновения. Для приближённой оценки опасности обычно используют значение Rh = 1 кОм.
При этом различают ощутимый, неотпускающий и фибрилляционный токи и их пороговые, т.е. наименьшие значения. Ощутимые токи вызывают ощутимые раздражения, неотпускающие приводят к непреодолимым сокращениям мышц руки, фибрилляционные - к беспорядочному сокращению волокон сердечной мышцы (фибрилл), при котором сердце не в состоянии выполнять функции кровяного насоса.
При частоте 50 Гц пороговое значение ощутимого тока - 1 мА, неотпускающего - 10 мА, фибрилляционного – 100 мА.
![]() |
Режимы и эквивалентные преобразования схемы трёхфазной сети
В трехфазной сети различают нормальный режим работы НР и аварийный АР, при котором одна из фаз оказывается замкнутой на землю через небольшое эквивалентное сопротивление замыкания Rзм, составляющее в большинстве случаев десятки и сотни Ом.
Для удобства анализа аварийный режим подразделяют на АР1 и АР2. При АР1 на землю оказывается замкнутой фаза, к которой прикасается человек. При АР2 человек прикасается к исправной фазе сети в момент, когда другая фаза оказывается замкнутой на землю.
На рис. 3 представлена обобщённая эквивалентная схема трёхфазной электрической сети, где переключатель S позволяет анализировать работу сети в режимах НР, АР1 и АР2.

